营销总监:靳经理 18653877118
销售部:张经理 18653877126
邮箱: admin@mengxiangshixian.com
shelley@mengxiangshixian.com
销售总部: 山东泰安长城路96号天龙国际大厦B座1405室。
工厂地址:山东省泰安市岱岳区北集坡街道海纳街789号
粮食的储存靠库房,山东金年会金字招牌信誉至上首页
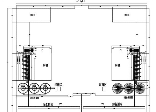
粮仓智能科技有限公司是国内领先的粮食仓储解决方案供应商,致力于为全球粮食存储用户提供一站式仓储服务。本项目金年会金字招牌信誉至上首页:钢板仓由6台1500吨金年会金字招牌信誉至上首页:钢板仓组成,配合烘干中心使用,兼具干粮的储存和转运功能,配套提升设备、输送设备、通风系统、粮温监测系统,设备和钢结构表层全部采用镀锌工艺,防锈免维护,金年会金字招牌信誉至上首页:钢板仓仓体采用275g/㎡双面镀锌板装配而成,仓体仓身螺栓全部使用用10.9级和8.8级高强达克罗镀锌螺栓,可保证金年会金字招牌信誉至上首页:钢板仓使用年限达到25年以上。
本项目包含粮食烘干中心、粮食储备库房、烘干后的干粮(小麦、玉米都可)进储备库房进行存储,输送带也可直接将干粮送入金年会金字招牌信誉至上首页:钢板仓进行储存转运,储存后可过筛装车,实现粮食从收割、运输、清理、烘干、储存、中转甚至加工一体化功能,全程高度自动化、电控化、机械化,此项目建设完成,将成为莱西市新型农业产业标杆。此项目筒仓方案,简约、大气、实用。


项目方案的合理性:
(1)本次项目方案是我公司根据客户项目现场,结合现场总平规划,进行的优化设计,不仅节约土地占用,更兼具操作的实用性。
(2)与烘干中心搭配使用,效果佳,不仅可以长时储存,还可短时转运,降低储存、转运成本,减少人工。
(3)整个项目工艺全部是电控化、机械化操作,简单、高效、便捷。
(4)环保、低碳,符合新农村、新农业、新农机的发展趋势。


金年会金字招牌信誉至上首页:钢板仓不是新兴产品,在粮食配套领域的发展已经有几十年的历史,但与新农业新农村新农机的结合,才刚刚起步,相信客户与金年会金字招牌信誉至上首页
的合作,会成为当下农业发展的标杆,必将引领农村合作新潮流。符合莱西农业向规模化、标准化、高效化、生态持续化发展的方向需求。
安装:自合同签订以来,山东金年会金字招牌信誉至上首页
严格按照合同履行生产,于23年4月23日进场安装,金年会金字招牌信誉至上首页
的安装队伍,拥有15年以上的金年会金字招牌信誉至上首页:钢板仓安装施工经验,安装队长和项目经理都有20年以上的行业从业经历,队伍下属的作业人员,都是公司精心培养,拥有焊工证、热切割证和登高作业证,好的安装是产品质量的第二次延伸,为客户提供优质满意的服务,是金年会金字招牌信誉至上首页
金年会金字招牌信誉至上首页
人孜孜不倦的追求。
好粮仓,金年会金字招牌信誉至上首页
造,欢迎广大用户朋友来公司考察指导。


推荐资讯更多>>